About
Who we are
VK - The World Of Design was established in 2019, though officially launched in 2021. Our dedicated team, working tirelessly, brings you high-quality services. We offer a comprehensive range of services as listed below.
Our Services:
- Vastu Drafting
- Vastu Layout
- Barchart | Devta Marking | Merma Marking
- Web Designing And Ecommerce Store
Transform your space with our expert Vastu drafting and layout services in Delhi, Faridabad, Gurgaon, Noida, and beyond. Our skilled draftsmen specialize in crafting Vastu-compliant designs and architectural drafting for harmonious spaces.
Learn MoreServices
COMMON SERVICES
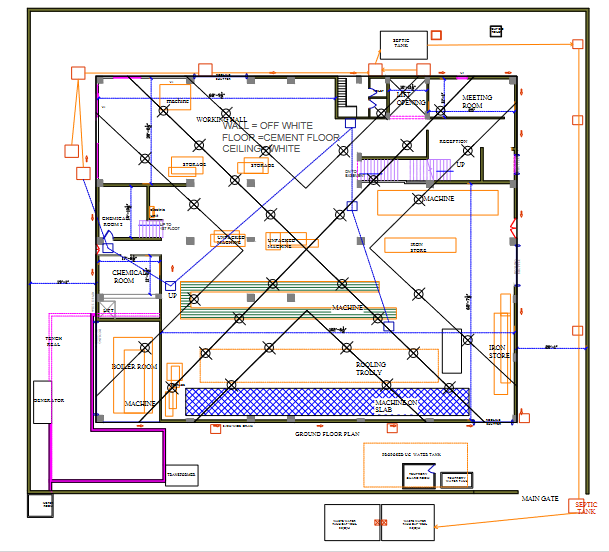
VASTU LAYOUT.
Transform your home or office with our Vastu layout services, tailored for harmony and peace. Serving Delhi, Faridabad, Gurgaon, Noida, and nearby regions, our team ensures your layout aligns with Vastu principles, enhancing positivity. Whether renovating or starting anew, trust us for spaces that blend tradition with modern comfort, promoting well-being and success.
- LAYOUT PLAN
- LAYOUT PLAN WITH GRID
- LAYOUT PLAN WITH BARCHART
- LAYOUT PLAN WITH DEVTA MARKING
- LAYOUT PLAN WITH DEVTA BARCHART
- LAYOUT PLAN WITH MERMA MARKING
INTERIOR & EXTERIOR DESIGNING
Exterior and interior design encompass not only what the architectural structure looks like but the furniture, flooring, paint and decorations suitable for outdoor or indoor use. Exterior design would include, for example, the design of your garden, deck and patio, while interior design includes everything inside your home, from the bedrooms to the kitchen and bathrooms. One factor to consider for exterior decorating, for example, is the appropriate fabrics for outdoor furniture. One of the factors to consider for interior decorating, for example, is the placement of furniture.
ARCHITECTURAL DRAWING
Architectural design is a discipline that focuses on covering and meeting the needs and demands, to create living spaces, using certain tools and especially, creativity. Therefore, the aim is to combine the technological and the aesthetic, despite the general belief that architecture is only a technological task.
In the same way, it mixes design, understood as the creative process, and architecture, which is based on the creation and presentation of solutions at a technical level.
In this aspect of architectural design, there are also other factors involved, that are related to geometry, space or aesthetics, among others. After all, architecture, and therefore architectural design, is made up of many elements and processes or phases.
Web Design & Ecommerce Store
Revamp your online presence with our web designing and e-commerce store development services. Serving Delhi, Faridabad, Gurgaon, Noida, and nearby areas, our expert team crafts visually appealing websites and user-friendly online stores. Let us help you stand out in the digital landscape, reaching customers effectively and maximizing your online potential.
Services
- Business Website } Ecommerce Store
- ERP & CRM Software
- Android APP Development .
- Wordpress Site.
- Custom Software.
Best Vastu Layout & Drafting Services in Delhi NCR
Explore our Vastu Layout services and create spaces that resonate with balance and positivity.
Team
Founder
Vishal Kushwaha
FounderContact
Contact Us
Location:
Ashok Nagar
New Delhi, 110052
Email:
vktheworldofdesigning@gmail.com
Call:
+91 9005804898
+91 7428734619
